Scroll to top

Oferta

Mieszkanie Sprzedaż: Koszalin
Typ transakcji Sprzedaż
Nr oferty 6001040
Rynek Wtórny
Typ nieruchomości Mieszkanie
Województwo Zachodniopomorskie
Gmina Koszalin
Miejscowość Koszalin
Powierzchnia 37.10
Ulica Moniuszki
Powierzchnia dzialki 0.00
Liczba pokoi 2
Piętro / Ilość pięter 1 / 4
Balkon Balkon
Garaż Parking ogólnodostępny
Umeblowane
Typ budynku Blok mieszkalny
Nr licencji
Rodzaj Własności Spółdzielcze własnościowe
Cena 299 000 PLN
Powierzchnia 37.10 m2

Dwupokojowe mieszkanie w pobliżu centrum! OFERTA TYLKO W NASZYM BIURZE!

Prezentujemy atrakcyjnie zlokalizowane 2-pokojowe mieszkanie z balkonem o dwustronnej wystawie okiennej, usytuowane na pierwszym piętrze bloku położonego na jednym z centralnych koszalińskich osiedli, przy ulicy Moniuszki.

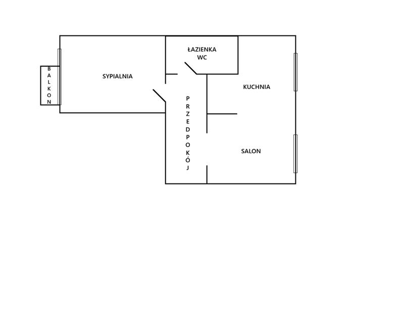
Nieruchomość o powierzchni 37,10m2 składa się z salonu połączonego z kuchnią, ustawnej, dużej sypialni z wyjściem na balkon, przedpokoju z szafą w zabudowie oraz łazienki z wc. Do mieszkania przynależy także piwnica.

Spółdzielcze prawo własności umożliwia zakup zainteresowanym obcokrajowcom.

W pierwotnym układzie kuchnia miała osobne wejście z przedpokoju lecz była mała i nieustawna, aktualnie wyburzona ściana między nią i salonem zyskała więcej przestrzeni i możliwość wygodnej zabudowy z miejscem na lodówkę.

Mieszkanie wymaga odświeżenia lecz na wyposażeniu znajdziemy plastikowe okna, panele w salonie, wymienione drzwi wejściowe. W cenie pozostaje również skompletowana kuchnia z lodówką, kuchenką i piekarnikiem elektrycznym oraz pralką w łazience.

W mieszkaniu zainstalowano system centralnego ogrzewania, źródłem cieplej wody jest sieć miejska. Czynsz do spółdzielni kształtuje się na poziomie 581zl obejmując zaliczkę na ogrzewanie, koszty zarządu, fundusz remontowy, sygnał rtv. Dodatkowo płatna będzie woda ciepła i zimna według zużycia, wywóz nieczystości (37zł-1os.) oraz prąd.

Lokalizacja nieruchomości jest jej niezaprzeczalnym atutem. Zamieszkanie w centrum miasta równoznaczne jest z posiadaniem dostępu do wszystkich potrzebnych w codziennym życiu udogodnień. W okolicy znajdziemy zarówno szereg sklepów, drogerii i aptek, lokali gastronomicznych czy przystanków autobusowych, jak i placówki oświatowe, place zabaw, park, urzędy i banki oraz prywatne przychodnie i gabinety lekarskie.

Osiedle jest też estetycznie zagospodarowane, nie brakuje tu zieleni, odnowionych chodników, a spółdzielnia dba o swoich mieszkańców. Jest bezpiecznie, czysto i bez obecności ruchliwych ulic.

Jeśli poszukujesz przytulnego mieszkania bez pokonywania uciążliwych schodów, lubisz mieć pełną infrastrukturę w zasięgu ręki, cenisz szybki i bezproblemowego dojazdu w każdy rejon miasta - koniecznie zapoznaj się osobiście z oferowanym przez nas lokalem!

  

Opiekun oferty







Mieszkanie Sprzedaż: Koszalin
Typ transakcji Sprzedaż
Nr oferty 6001040
Rynek Wtórny
Typ nieruchomości Mieszkanie
Województwo Zachodniopomorskie
Gmina Koszalin
Miejscowość Koszalin
Powierzchnia 37.10
Ulica Moniuszki
Powierzchnia dzialki 0.00
Liczba pokoi 2
Piętro / Ilość pięter 1 / 4
Balkon Balkon
Garaż Parking ogólnodostępny
Umeblowane
Typ budynku Blok mieszkalny
Nr licytacji
Rodzaj Własności Spółdzielcze własnościowe
Cena 299 000 PLN
Powierzchnia 37.10 m2

Dwupokojowe mieszkanie w pobliżu centrum! OFERTA TYLKO W NASZYM BIURZE!

Prezentujemy atrakcyjnie zlokalizowane 2-pokojowe mieszkanie z balkonem o dwustronnej wystawie okiennej, usytuowane na pierwszym piętrze bloku położonego na jednym z centralnych koszalińskich osiedli, przy ulicy Moniuszki.

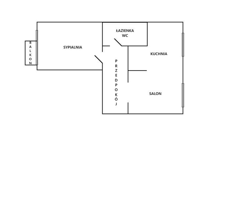
Nieruchomość o powierzchni 37,10m2 składa się z salonu połączonego z kuchnią, ustawnej, dużej sypialni z wyjściem na balkon, przedpokoju z szafą w zabudowie oraz łazienki z wc. Do mieszkania przynależy także piwnica.

Spółdzielcze prawo własności umożliwia zakup zainteresowanym obcokrajowcom.

W pierwotnym układzie kuchnia miała osobne wejście z przedpokoju lecz była mała i nieustawna, aktualnie wyburzona ściana między nią i salonem zyskała więcej przestrzeni i możliwość wygodnej zabudowy z miejscem na lodówkę.

Mieszkanie wymaga odświeżenia lecz na wyposażeniu znajdziemy plastikowe okna, panele w salonie, wymienione drzwi wejściowe. W cenie pozostaje również skompletowana kuchnia z lodówką, kuchenką i piekarnikiem elektrycznym oraz pralką w łazience.

W mieszkaniu zainstalowano system centralnego ogrzewania, źródłem cieplej wody jest sieć miejska. Czynsz do spółdzielni kształtuje się na poziomie 581zl obejmując zaliczkę na ogrzewanie, koszty zarządu, fundusz remontowy, sygnał rtv. Dodatkowo płatna będzie woda ciepła i zimna według zużycia, wywóz nieczystości (37zł-1os.) oraz prąd.

Lokalizacja nieruchomości jest jej niezaprzeczalnym atutem. Zamieszkanie w centrum miasta równoznaczne jest z posiadaniem dostępu do wszystkich potrzebnych w codziennym życiu udogodnień. W okolicy znajdziemy zarówno szereg sklepów, drogerii i aptek, lokali gastronomicznych czy przystanków autobusowych, jak i placówki oświatowe, place zabaw, park, urzędy i banki oraz prywatne przychodnie i gabinety lekarskie.

Osiedle jest też estetycznie zagospodarowane, nie brakuje tu zieleni, odnowionych chodników, a spółdzielnia dba o swoich mieszkańców. Jest bezpiecznie, czysto i bez obecności ruchliwych ulic.

Jeśli poszukujesz przytulnego mieszkania bez pokonywania uciążliwych schodów, lubisz mieć pełną infrastrukturę w zasięgu ręki, cenisz szybki i bezproblemowego dojazdu w każdy rejon miasta - koniecznie zapoznaj się osobiście z oferowanym przez nas lokalem!